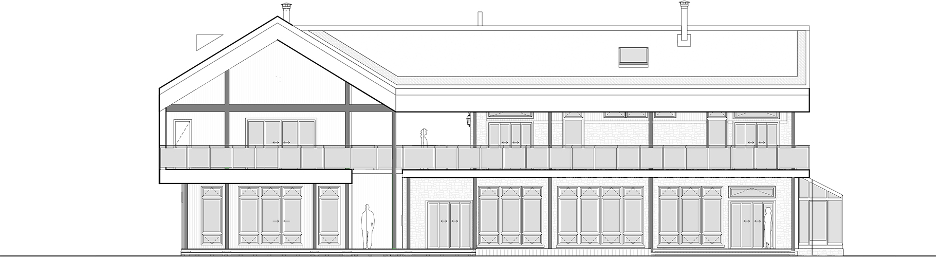
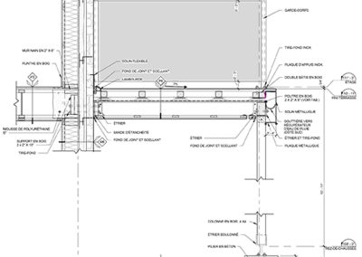
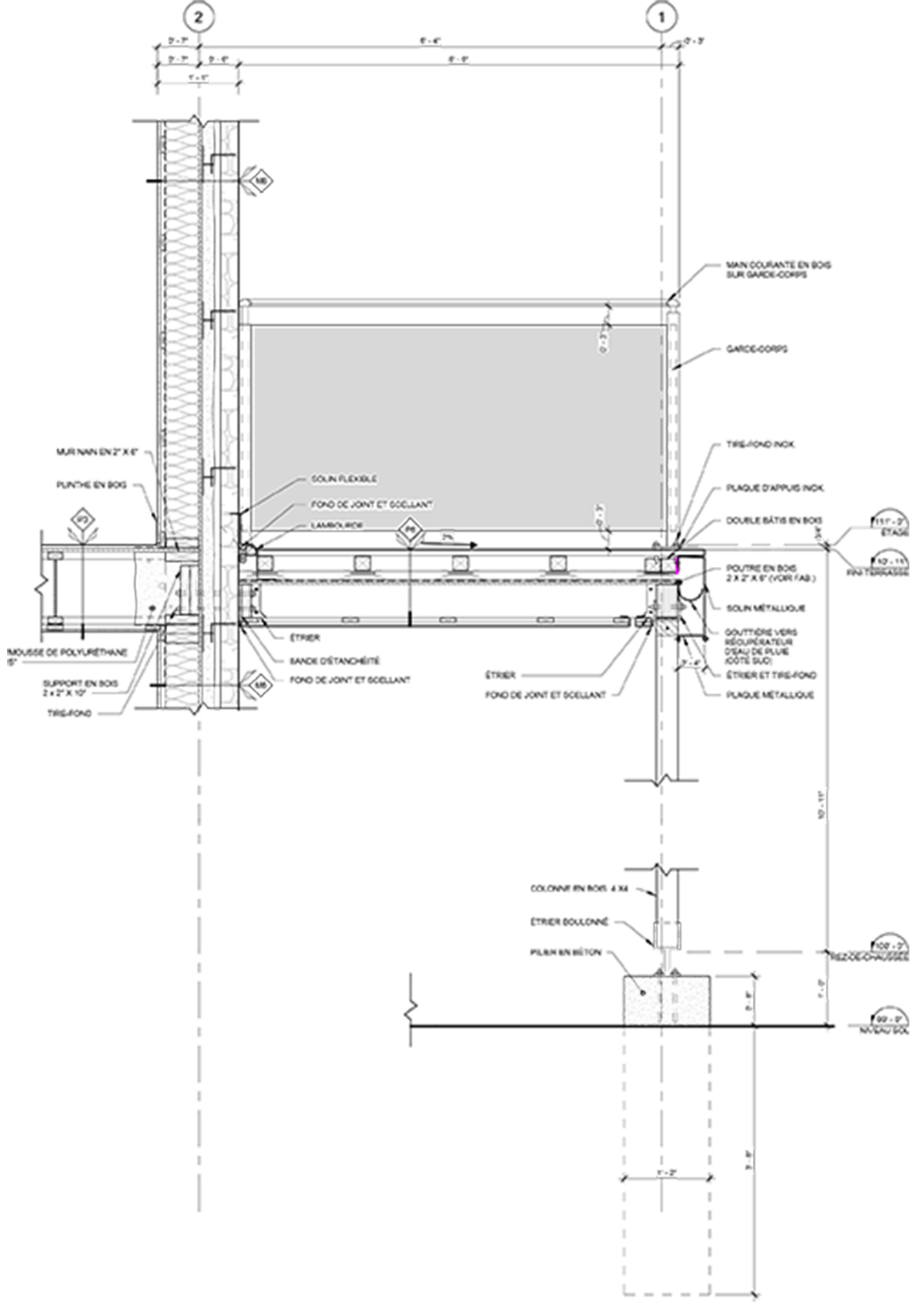
Maison bi-générationnelle DEMANDE DU CLIENT : UNE MAISON BI-GÉNÉRATION Les clients souhaitent une maison intergénérationnelle divisée en deux logements: un pour eux et leurs deux enfants et un pour les grands-parents. Ils privilégient le partage des lieux tout en désirant maximiser l’intimité des deux bâtiments. Ils souhaitent optimiser la vue sur la cour arrière, côté ouest. NOTRE RÉPONSE : MAXIMISER LA LUMIÈRE ET L’INTIMITÉ Utiliser des blocs de verre pour maximiser l’éclairage naturel et préserver l’intimité des habitants. Créer un balcon couvert afin de diminuer la surchauffe du côté ouest tout en maximisant la vue. Installer un toit végétal afin de favoriser la durabilité du toit et la climatisation du bâtiment. Fermer le balcon coté nord afin d’accroître l’intimité et le confort. Créer deux accès communs: le vestibule et le passage couvert. Optimiser la vue sur le parc côté ouest. Privilégier les pièces à aire ouverte. Détail balcon Détail toiture végétal Élévation ouest Ouest Maison bi-générationnelle Rendu intérieur Élévation est Élévation sud AUTRES RÉALISATIONS G M T Détecter la langueAfrikaansAlbanaisAllemandAnglaisArabeArménienAzériBasqueBengaliBiélorusseBirmanBosniaqueBulgareCatalanCebuanoChichewaChinois (Simp)Chinois (Trad)CingalaiCoréenCréole haïtienCroateDanoisEspagnolEspérantoEstonienFinnoisFrançaisGalicienGalloisGéorgienGoudjaratiGrecHaoussaHébreuHindiHmongHongroisIgboIndonésienIrlandaisIslandaisItalienJaponaisJavanaisKannadaKazakhKhmerLaotienLatinLettonLituanienMacédonienMalaisienMalayalamMalgacheMaltaisMaoriMarathiMongolNéerlandaisNépalaisNorvégienOuzbekPanjabiPersanPolonaisPortugaisRoumainRusseSerbeSesothoSlovaqueSlovèneSomaliSoudanaisSuédoisSwahiliTadjikTagalogTamoulTchèqueTeluguThaïTurcUkrainienUrduVietnamienYiddishYoroubaZoulou AfrikaansAlbanaisAllemandAnglaisArabeArménienAzériBasqueBengaliBiélorusseBirmanBosniaqueBulgareCatalanCebuanoChichewaChinois (Simp)Chinois (Trad)CingalaiCoréenCréole haïtienCroateDanoisEspagnolEspérantoEstonienFinnoisFrançaisGalicienGalloisGéorgienGoudjaratiGrecHaoussaHébreuHindiHmongHongroisIgboIndonésienIrlandaisIslandaisItalienJaponaisJavanaisKannadaKazakhKhmerLaotienLatinLettonLituanienMacédonienMalaisienMalayalamMalgacheMaltaisMaoriMarathiMongolNéerlandaisNépalaisNorvégienOuzbekPanjabiPersanPolonaisPortugaisRoumainRusseSerbeSesothoSlovaqueSlovèneSomaliSoudanaisSuédoisSwahiliTadjikTagalogTamoulTchèqueTeluguThaïTurcUkrainienUrduVietnamienYiddishYoroubaZoulou Fonction Sound est limitée à 200 caractères Options : Historique : Commentaires : Donate Fermer Projet Montauban Projet Gaspésie Plan construction Projet Prague